 
先端的なデジタル技術を活用することにより組織や業務を革新を図るDX(デジタルトランスフォーメーション)が様々な業界で注目されていますが、当社は、建設業の喫緊の課題である生産性向上のためのツールとしてDXが大きなポテンシャルを有することに着目し、建設業界の先陣を切って建設DXに取り組んでいます。そして、この取り組みをきっかけとして、時代を先取りした会社への変化を加速させていきたいと考えています。
DXが目指すもの
〇本社と現場の一体化
 ・全工事を一つの工事として一元管理することにより工事の生産性を向上
 ・ベテランの知識・経験を現場に活用し品質を向上
 ・安全管理体制の拡充による安全性の向上
 ・自然災害等の緊急事態における対応体制の向上
〇将来想定される労働力不足への対応
 ・現場運営の効率化による管理体制のスリム化
 ・現場テレワーク等の働き方改革
〇災害時の地元自治体との連携・協力体制の強化
 ・オンラインでの地元自治体との情報共有による災害対応力の向上
〇社内コミュニケーションの活性化
 ・各現場を繋ぐオンラインでの交流会・勉強会
〇社内研修の拡充
 ・IWB(インタラクティブホワイトボード)を利用したオンライン研修
DXの装備
【DXセンター】
<建築概要>
鉄骨造2階建
延べ床面積 292.86m2
1F:DXルーム、ICT室      (災害時は災害対策室として機能)
2F:役員室
建物工費  9,000万円
機器設備  3,000万円
total  1億2,000万円
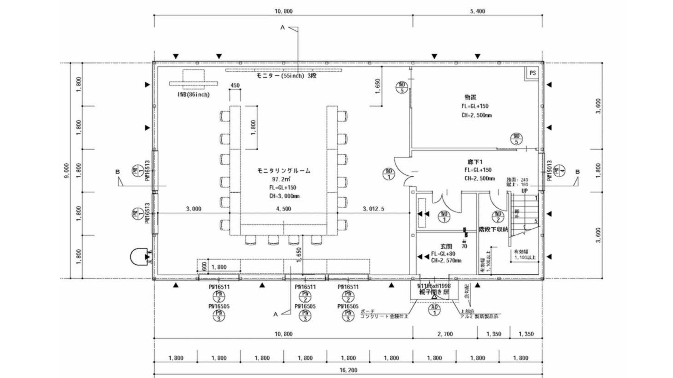
<DXセンター 建築平面図 (1F)>
 
 
 
<DXセンターの設備>
55inchモニター   12台
PC          12台
センターPC       12台
VPN・DDHBOX
IWB(85inch)    1台
IWB(55inch)    1台
タブレット         1台
CYNAPPURE
<草野作工 建設DX ネットワーク構成図>
 
 
 
【本社DXルーム】
55インチ大型ビジョン4台を連結した大画面モニター
86インチIWB(インタラクティブホワイトボード)
60インチTV
【現場DXコーナー】
55インチ大型ビジョン1台
55インチIWB(インタラクティブホワイトボード)
24時間リアルタイム遠隔カメラ
ウォッチタイプ・ウェアラブルデバイス(全作業員装着)
 
 
本社DXルーム(会議室)
 
現場DXコーナー
DXの活用状況
〇ZOOM、IWBを利用した遠隔臨場(社内検査、現場と本社との打ち合わせ・協議)
〇安全健康管理システム「みまもりがじゅ丸」を全作業員に装着し健康及び安全を管理(脈拍測定及び位置確認)
〇本社で常時現場の進行状況を把握(支援、協議の必要性を把握)
〇バスマップによる運搬車両の運行状況の把握(運行監視重点箇所の把握)
〇オンライン勉強会、オンライン研修の実施
〇現場でのテレワークを実証実験中(工事現場2か所;現場代理人、監理技術者以外の技術職員)
〇ICT技術の内製化を目指して本社にICTグループを設置し、平面、横断、縦断図を基づく3次元設計データの作成などを開始      
主に現場での熱中症対策のために、全現場で脈拍情報と位置情報をリアルタイムに発信するスマートウォッチ型ウェアラブル端末(みまもりがじゅ丸)を全作業員に装着させ、現場事務所のパソコン及び本社DXルームの大型ディスプレーでのチェックという二重の管理体制を取っています。
このシステムの導入により、作業員の脈拍の上昇をいち早くキャッチし、また、最悪、作業員が倒れた場合にも位置情報を常時把握しているためにいち早く対応することが可能となりました。
 
ウェアラブル端末の装着状況
 
現場事務所でのパソコン画面によるチェック
トピックス
ICT施工StageⅡ試行工事に選定
 当社が令和6年度に北海道開発局札幌開発建設部から受注している千歳川河川事務所所管の「石狩川改修柏木川右岸築堤盛土工事」及び「石狩川改修島松川右岸築堤盛土工事」が、ICT施工StageⅡ試行工事に選定されました。
 ICT施工StageⅡは、国土交通省が、さらなる省人化を目指し、IoTやデジタルツインなどを活用して建設現場を見える化する取組で、本年度、ICT施工のトップランナーによる試行工事を実施するものです。
 この試行工事は、全国で12の工事が選定され、そのうち、北海道開発局の工事では、当社の2工事のほかに、「道央圏連絡道路長沼町長沼ランプ改良工事」(施工:(株)砂子組)が選定されました。
 具体的な取組としては、AIカメラによる映像データを活用したダンプの入退管理、稼働データのリアルタイムでの把握による掘削機械の配置台数の見直しなどが、想定されています。
 なお、この試行工事では、以下の検証、確認を行います。
⓵施工データ活用による作業待ち防止や工程調整、最適な要員配置による効果
⓶建設機械によって取得されるデータを集約・活用するための共通データ環境として施工プラットフォームに必要なデータ
「北海道開発局 i-Con奨励賞2022」を受賞
 北海道開発局は7月28日、札幌第1合同庁舎で2022年度北海道開発局i-Con奨励賞表彰式を行いました。当社は「米里築堤河道掘削外工事」(札幌開発建設部発注)で受賞し、石塚宗司開発局長から、草野量文代表取締役専務と担当技術者として菊地法裕が表彰状記念バッチを受け取りました。
 この賞は、現場の生産性向上や建設業の魅力発信で他の模範となる工事・業務を表彰するもので、今回で3年目となります。
 石塚局長からは「激甚化する災害や人口減少などが進む中、地域の守り手として建設業の役割はますます重要になっています。本道のリーディングカンパニーとして引き続き力を貸して欲しい」とねぎらいの言葉を頂きました。
 当社としては、今回の受賞を機に、現場の生産性向上や建設業の魅力発信に努め、i-Constructionと建設DXの推進してまいります。
 
 
 
 
「北海道開発局 i-Con 奨励賞2022取組事例集」に掲載
 
 
 
「北海道におけるインフラDX・i-Constructionの推進へ向けたシンポジウム」(主催:北海道開発局)にパネラーとして参加
2021年11月29日(月)、「北海道におけるインフラDX・i-Constructionの推進へ向けたシンポジウム」(主催:北海道開発局)に当社の西島洋介常務取締役がパネラーとして参加し、「DXルームを活用した生産性向上」というテーマで事例発表及び意見交換を行いました。
シンポジウムは、オンライン配信により実施され、約330名が参加しました。北海道大学の高野伸栄教授の基調講演に続いて、当社が事例発表を行い、他に砂子組がBIM/CIM、堀口組がICT機械の活用についての事例発表を行いました。意見交換会は高野教授のコーディネイトで3名のパネラーが、インフラDXやi-Conの導入による効果や導入に向けてのアドバイスなど、今後の推進に向けての前向きな意見交換を行ないました。
 
 
Tvh「 けいナビ~応援!どさんこ経済~」 で紹介
 2021年11月20日、テレビ北海道(Tvh)の「けいナビ」で「コロナ禍 IT技術で乗り切る北海道企業」というテーマで、当社のDXの取り組みが約5分にわたって紹介されました。これは、東京商工リサーチの紹介により、当社の道内建設会社としては先進的なDXの取り組みが取り上げられたものです。
 番組では、コロナ感染症対策として北海道開発局が導入した遠隔での現場点検などに対応するために本格的なDXの導入を決定した経緯やDXを活用して経営幹部と全現場を繋ぎ、ZOOMで毎月実施している打合せの様子、自宅と現場とを繋いだテレワークの様子などが紹介されました。また、資材を運搬するダンプの位置情報を把握し、ドライバーに危険個所を知らせたり、速度をオーバーした際に注意喚起できるシステムなども紹介され、ハイテク化した土木の現場の様子の一端が映像によって視聴者に伝えられました。
(放送 11月20日(土) 11:30~12:00:再放送 25日(木) 深夜2:30~3:00 26日(金) 11:30~12:00)
建設DXの経緯
2021年 イメージづくり
・本社会議室のDXルーム化
・全現場にDXコーナーを設置
・大型モニタ、IWBなどの機器導入・運用開始
2022年 ICTの内製化
・ICTグループ発足     
・DXセンター建設着手
2023年 DXセンター完成、稼働開始
・DXグループの常駐化