CONSTRUCTION 建設事業
CONSTRUCTION DX 建設DX
本社と現場を一体化し、全工事を一つの工事として管理
先端的なデジタル技術を活用することにより組織や業務を革新を図るDX(デジタルトランスフォーメーション)が様々な業界で注目されていますが、当社は、建設業の喫緊の課題である生産性向上のためのツールとしてDXが大きなポテンシャルを有することに着目し、建設業界の先陣を切って建設DXに取り組んでいます。そして、この取り組みをきっかけとして、時代を先取りした会社への変化を加速させます。
DXが目指すもの
〇本社と現場の一体化 ・全工事を一つの工事として一元管理することにより工事の生産性を向上 ・ベテランの知識・経験を現場に活用し品質を向上 ・安全管理体制の拡充による安全性の向上 ・自然災害等の緊急事態における対応体制の向上
〇将来想定される労働力不足への対応 ・現場運営の効率化による管理体制のスリム化 ・生成AI活用による業務の効率化 ・現場テレワーク等の働き方改革
〇災害時の地元自治体との連携・協力体制の強化 ・オンラインでの地元自治体との情報共有による災害対応力の向上
〇社内コミュニケーションの活性化 ・各現場を繋ぐオンラインでの交流会・勉強会
〇社内研修の拡充 ・IWB(インタラクティブホワイトボード)を利用したオンライン研修
DXの装備
鉄骨造2階建
延べ床面積 292.86m²
1F:DXルーム、ICT室
(災害時は災害対策室として機能)
2F:役員室
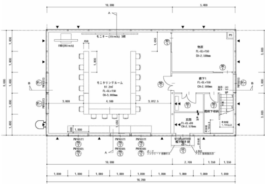
DXセンター 建築平面図/1F
-
DXセンター
-
本社DXルーム(会議室)
-
現場事務所 例
-
現場事務所 例
ICT施工StageⅡ試行工事に選定
当社が令和6年度に北海道開発局札幌開発建設部から受注している千歳川河川事務所所管の「石狩川改修柏木川右岸築堤盛土工事」及び「石狩川改修島松川右岸築堤盛土工事」が、ICT施工StageⅡ試行工事に選定されました。
ICT施工StageⅡは、国土交通省が、さらなる省人化を目指し、IoTやデジタルツインなどを活用して建設現場を見える化する取組で、本年度、ICT施工のトップランナーによる試行工事を実施するものです。
この試行工事は、全国で12の工事が選定され、そのうち、北海道開発局の工事では、3工事が選定され、そのうち上記2工事が当社の工事です。
具体的な取組としては、AIカメラによる映像データを活用したダンプの入退管理、稼働データのリアルタイムでの把握による掘削機械の配置台数の見直しなどが、想定されています。
なお、この試行工事では、以下の検証、確認を行います。
①施工データ活用による作業待ち防止や工程調整、最適な要員配置による効果
②建設機械によって取得されるデータを集約・活用するための共通データ環境として施工プラットフォームに必要なデータ


