北海道の開発と土木の歴史
弾丸道路が積雪寒冷地の舗装技術に与えた影響について~
一般社団法人北海道舗装事業協会
常務理事 安倍隆二
2019年5月10日 公開
一般国道36号札幌・千歳間道路(以下:弾丸道路)は昭和28年11月2日に完成した。この道路の予算は日米行政協定に基づく安全保障諸費という、戦後日本が米国の影響を受けている時代に作られた道路であり、当時の積雪寒冷地の舗装技術を駆使し完成したものである。短い工期内で完成させる必要があり、当時は全国でコンクリート舗装の設計が一般的であったが、弾丸道路では当時工事実績の乏しいアスファルト舗装を本格採用した。この道路には積雪寒冷地の道路設計、凍上対策、およびアスファルト混合物の種類等について検討され、積雪寒冷地の舗装技術の礎となった。本報告は弾丸道路で検討した舗装技術や現在の舗装技術に与えた影響等を報告するものである。
キーワード:弾丸道路、積雪寒冷地、アスファルト舗装、摩耗対策、凍上対策
1.はじめに
弾丸道路は日米行政協定に基づく安全保障諸費という特殊な財源で建設された道路であり、高橋敏五郎元札幌開発建設部長が設計・施工等に指揮を取り、約1年間の短期間で、札幌・千歳間延長34.5kmの基本設計、調査・設計、施工を完了した。この工事では道内外の18社が受注し、北海道開発局の直営機械も参加し、機械を総動員し官民の協力で昼夜兼行で工事を実施したものであり、短い工期内で完成するためにアスファルト舗装を採用した。設計方法では凍上対策やアスファルト混合物の種類等が検討され、現在の舗装技術の礎となった。
本報告は弾丸道路で検討した舗装技術や現在の舗装技術に与えた影響等を報告する。
2.弾丸道路の築造の基準
弾丸道路は「自動車主用道路」と位置付け、混合交通を許しながら自動車を対象とする道路である。
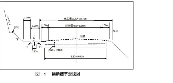
表-1に築造の基準、図-1に横断標準定規図、表-2には参考に現在の道路構造令の基準を示す。基本的には「山速里鈍を原則」として築造の基準を決定し、緩速交通の多いところの自動車速度を45km/hと仮定し、緩速交通の少ないところはでは60km/h、地形や環境が良ければ75km/hとした。当時の設計方法では山地、丘陵、平地毎に区分としていたがここでは適当でなく、区間毎の環境条件を考慮し仮定速度と設定した。曲線半径、曲線長および曲線部の拡幅、安全視距については現在の規格値を満足している。山間部の縦断勾配6%は、当時の一般車両に支障がなかったが、重荷を積んだトラック等には支障となり、スピードが低下することにより自動車の行列が多くなったと「札幌・千歳間道路物語(北海道道路史調査会)」では報告されている。
当時の路肩幅員は0.3~0.5mと狭かったが、当初計画では1.5mであったが建設省(当時の中央官庁)から反対を受け、1.0mとした。車道幅員は3.75~4.0mであり、現在より広い幅員である。側溝から外側は堆雪スペースを考慮したものであり、除雪を考慮した横断標準定規図である。また、この弾丸道路の改良方針は、①無理の少ない経済的な改良路線を取り得ること、②全工区のスピードアップから見て利用頻度の高い路線となること、③路線の連続性が保持されること、の3項目が挙げられる。



3.凍上対策
凍上対策については、理論的研究や実験は当時実施されていたが、実際の工事に適用されたのは初めてであった。工事が始まる前に高橋敏五郎氏は現地調査を実施し、「霜柱が出ているのが大体凍結深度の半分くらいまでに発生し、その下にわずか残る位のもので、80%置換すれば大きな霜柱ができてもわずかなものであろうし、舗装は壊れるはずがない」という考えにより、(1)式により凍結深さを決定した。
置換厚>凍結深さ × 70% + 舗装厚 × 50% (1)
(1)式により札幌付近の凍結深さを1mとし、最小置換厚を算出した結果、約80cmとなり、札幌・千歳間の置換厚を80cmとした。置換材料は切込砂利や砂が最適であったが、工費や工期の関係から沿線の良質火山灰を使用することとした。当時、凍上試験装置が無く、非凍上性の判定基準も無かったため、当時の舗装技術者は非凍上性の火山灰を判定するのに、相当苦慮した。

凍上対策として採用された工法として、地下水位の低下を図るため路側部に暗渠を設けた。地下水位が高かったり、地下水流や湧水のある箇所では積極的に路床外に排出しなければ路盤工の部分に貯留する恐れがあった。暗渠が必要な箇所を調査するため、降雨後や融解期など注意深く調査し必要箇所を決定した。
現在でも置換工法は標準的な対策工法であり広く活用されている。置換厚の深さは理論最大凍結深さの70%としており、理論最大凍結深さとは全層が切込砕石等の粗粒材であるときの最大凍結深さである。(1)式と現在の置換厚の算定式は異なるが、砂利道における置換厚80%と現在の理論最大凍結深さの70%は同じ深さとなり、当時の凍上対策工法の考え方が現在も活用されている。
現在の置換材料の種類は非凍上性の切込砕石、切込砂利、砂、火山灰が使用されている。非凍上性を判断する基準として切込砕石と切込砂利は4.75mmふるい通過するものに対して、75μmふるいを通過するもので切込砂利は9%以下、破砕面が30%以上の切込砂利は12%以下、切込砕石は15%以下と「北海道開発局道路・河川工事仕様書」では規定されている。火山灰については凍上試験に合格するものを使用することになっている。ただし、凍上試験結果の判定が要注意のものは75μmふるい通過量が20%以下であり、強熱減量が4%以下のものは使用できる。
当時、現場の品質管理では非凍上性の判定を現場で判断していたので、相当現場が混乱したのも当然と推察される。
4.弾丸道路の舗装工事
弾丸道路は延長34.5km(札幌・千歳間)を三工区に分けていた。第一工区は延長2,435m(豊平~月寒)、舗装厚t=20cmのコンクリート舗装である。第二工区は延長18,491m(月寒~島松)、舗装厚t=9cmのアスファルト舗装であり、舗装構成は中粒式アスコンt=5cm、アスファルトマカダムt=4cmの2層の舗装構成である。第三工区は延長13,625m(島松~千歳)、細粒式アスコンt=5cm、転圧コンクリートt=18cmの舗装構成である。
(1)第一工区の舗装工事(コンクリート舗装)
第一工区は札幌市内からの前後の舗装のタイプと同じにするため、コンクリート舗装が採用された。表-3に弾丸道路と現在のセメントコンクリート舗装の品質基準を示す。弾丸道路の曲げ強度の規格値4.0N/mm2は現在の規格値4.5N/mm2と比較するとやや下回る。空気量4.5%の規格値は同じあり、AEコンクリートを使用している。スランプは0~2cmであり、現在の規格値2.5cmと比較し硬練りのセメントコンクリートである。弾丸道路の水セメント比の規格値48%は、現在の規定では「凍結融解がときどき起こる場合」の最大値50%以下を満足しているが、「特に厳しい気候で凍結融解がしばしば繰り返される場合」の水セメント比の最大値45%以下は満足していない。
当時の施工方法はダンプトラックで運搬されたトラックを人力で敷均し、足付きの平面バイブレーターで締固め、横断タンパーで突固めた後、縦フロートで均し、簡易フィニッシャーで仕上げる。その後ホウキ目を付け完了となる。その後二週間の養生が行われ、一般交通に開放された。当時のコンクリート舗装の施工は、仕様書通りに施工することが強く要求され、運搬されたコンクリートは、型枠に沿った所から順序よくスコップを返しながら、所定の高さまで置き、コンクリートを投げつけることは許されなかった。品質管理試験は空気量、スランプ、曲げ試験で行われ、厳しく管理され、スランプは強度に影響を大きく受けるのでスランプ管理で規格値を少しでも外れた場合は、全て廃棄された。


(2)第二工区の舗装工事(アスファルト舗装)
舗装設計の方法はアメリカのワイオミング州の方法を採用した。この方法は路床の設計CBRを求め、設計曲線を使用し舗装厚を決定する。この方法では年降雨量、地下水位、凍上、交通量等によって評価するものである。
高橋敏五郎氏は「ワイオミング州の設計曲線の当否は別問題として、私たちは先ず輪荷重で安全を取り、材料のCBRを低く取り、切込砂利路盤や砕石基礎の厚さを増し、更に厚くなった砕石の基盤に不安を感じて、今度はアスファルトやセメントを添加して一層強いものを作っている。これを一口で言うと、一切の施工の不安を、余分の材料を使ってカバーしているのである」と述べ、品質が良くなかった改良業者が施工した切込砂利の上部に6cmの砕石基礎を設け、再整形や再転圧を実施した。また路床の入れ替えやセメント安定処理等を行い、弾丸道路の品質の保持に努力している足跡が窺える。
図-4に第二工区舗装断面図を示す。表層は中粒式アスファルトコンクリート、二層目は実績のある滲透式アスファルト・マカダム工を施工した。表層表面にはシールコートを施工し、舗装表面をシールするとともにすべり抵抗性も配慮した。
当時表層の混合物は細粒式アスファルトコンクリートと粗粒式アスファルトコンクリートを利用していたが、中間的な粒度である中粒式アスファルトコンクリートを採用した。採用した理由はこの工区に急勾配が多く、北海道の厳しい気象変化に対応するためには、冬に脆くならず、夏に流れないように期待した配合を採用した。配合試験の結果、アスファルト(針入度60-100)が8.0%、石粉4.0%、砕石39.6%、砂48.4%とした。この配合は全国でも初めての配合であったため、試行錯誤の繰り返しから生まれた配合であった。
図-5に中粒式アスファルトコンクリートと現在の表層の標準混合物である密粒度アスコン13Fの合成粒度を示す。密粒度アスコン13Fと中粒式アスファルトコンクリートの合成粒度と比較すると、中粒度アスコンは粒度が細かくアスファルト量が多い配合である。現在の耐摩耗対策としてファイラーとアスファルトの重量比であるF/A=1.7としているが、中粒式アスファルトコンクリートはF/A=0.5であり、耐摩耗性は劣る混合物と評価できる。二層目の滲透式アスファルト・マカダム工は、骨材を敷き広げた後に、アスファルトを散布して滲透させ、骨材の噛み合わせとアスファルトの結合力によって安定性のある層を造る工法である。
表層の上にはアーマーコートが施工された。アスファルトでシールコートを行い、その上から砕石2~5mmを散布し、転圧する工法である。

図-4 第二工区舗装断面図

図-5 中粒式アスファルトコンクリートの合成粒度
特記仕様書の中では、作業時間、骨材の産地、工程、品質管理等が記載されている。以下に当時の特記仕様書の内容を示す。
a) 作業時間
特記仕様書の中で作業時間帯についての記述があり、「特に監督員が同意した場合を除き夜間作業は禁止される。精密な仕上げを必要する場合の作業時間は夜明け一時間後、日没二時間前の昼間に限定」とあり、日中の明るい時間帯の施工を義務付けている。
b) 骨材の産地
特記仕様書の中では舗装用骨材については、砕石は豊平側の玉石(石山産硬石及び類似品は試験を要する)を砕いたもの、小樽産張碓、稲穂山、朝里産の原石を砕いたものとし、粗砂は豊平川産、広島産の砂とし、細砂は銭箱、花畔、錦岡産の海砂となっており産地を指定した記述である。
c) 工程について
「現場における実際の舗装工事は、昭和28年6月1日より開始し、8月末日まで舗装面積の90%以上を完成しなければならない。但し状況により特定部分に就いては6月1日以前に着工することが出来る」とあり、供用日を厳守するために工程に関する記述がある。
d)品質管理
舗装混合物は「重量2,200kg/m3以上とし、空隙を3~4%、ハーバード安定試験値は40℃にて3,500以下でなければならぬ」と規定されている。なお、現在は重量の規定は無く、ハーバード安定試験は、マーシャル安定度試験に変更されている。
「平坦度については3m直線定規に対して7.5mm以内とし、表面仕上げは凹凸検査の直後、混合物が冷却せず、柔軟性を保持する内に施工することとし、撒布機に依り所定の溶融アスファルトを均等に撒布し直ちに2~5mmの小砕石を一様に撒布し入念転圧仕上げをするものとす。冷却後、遊離状態にある過剰の小砕石は掃出するものとする」と示され、平坦性の規格値や施工方法の記述がある。平坦性の測定方法や規格値は現在と異なるが、現在も乗り心地の評価指標である平坦性の規格値が仕様書で定められている。
(3)第三工区の舗装工事(アスファルト舗装)
この工区は他の工区と異なり、島松の演習場にアメリカの駐留軍の重機が多く通る最大の重交通区間であり、千歳市街の既設コンクリート舗装の摩耗が激しいことから、コンクリート舗装面を露出することに不安があった。
そのため、摩耗対策としてアスファルトを富配合にすれば靱性を増すことができ、補修も容易との理由からアスファルト舗装が採用された。アスファルト舗装の下層に上層路盤として、セメント安定処理を実施した。
図-6に第三工区舗装断面図を示す。表層には細粒式アスファルトコンクリートを使用した。図-7に細粒式アスファルトコンクリートと密粒度アスコン13Fの合成粒度を示す。配合はアスファルト量9.0%、石粉6.0%、砕石25%、砂60%としている。アスファルト量が多く、砂も多い配合であり、現在の表層の標準混合物である密粒度アスコン13Fと比較すると、細かい粒度となっている。F/A=0.67であり、耐摩耗性には劣る配合である。上層路盤に用いたセメント安定処理は転圧コンクリート基礎の名称としている。セメント安定処理の配合において、当初計画ではセメントの使用量を150~180kg/m3としていたが、建設省に工法の説明した結果、セメント使用量210kg/m3以上でなければ配合の認可を受けられないことから、セメント使用量210kg/m3に変更した。しかしながら、施工後の収縮の影響から全区間の目地部に3~4mm程度の横断クラックが発生した。


5.弾丸道路が現在の舗装の設計手法に与えた影響
弾丸道路は、現在の凍上対策、アスファルト混合物の配合設計に関して大きな影響を与えた。凍上対策として実施した置換工法や暗渠は、現在の舗装設計に反映されている。現在の凍上対策は置換工法が代表的な工法となっており、気象庁のアメダスデータを用い、凍結指数を算出し、置換厚を決定している。算出に当たっては理論最大凍結深さの70%を置換厚としているのが一般的である。なお空港の基本施設では100%の置換厚としている。地下水位を下げる暗渠は、現在も遮断排水や路床排水として活用されている。
アスファルト混合物の配合設計については、弾丸道路におけるタイヤチェーンによるアスファルト舗装の摩耗が重大な問題となり、摩耗対策を考慮した配合設計の研究に繋がった。その結果、F/A=1.7で配合設計を組むことや耐摩耗対策として骨材の比重、吸水率の北海道独自の規格値が設定された。
6.おわりに
弾丸道路は現在の舗装技術に大きな影響を与えたが、特筆すべきは、積雪寒冷地において初めて理論的研究や実験結果を実際の舗装工事で適用したことや、供用後に発生した課題が現在の凍上対策やアスファルト舗装の配合設計手法等に大きく寄与していることである。当時の舗装技術者はチャレンジ精神が旺盛であり、試行錯誤を繰り返しながら弾丸道路を完成した舗装技術者の姿勢は現在にも通じるものがある。

昭和32年5月31日生まれ
出身地 帯広市
昭和57年3月 室蘭工業大学 土木工学科 卒業
昭和57年4月 北海道開発局 室蘭開発建設部
平成6年6月 ~平成30年3月 北海道開発局 開発土木研究所(現在の寒地土木研究所)
寒地土木研究所では、アスファルト舗装に関する研究を主に従事
平成30年5月~一般社団法人 北海道舗装事業協会
